دفتر معماری حیات

تصاویر و دیاگرام‌های مربوط به پروژه:


دفتر معماری حیات دفتر معماری حیات دفتر معماری حیات دفتر معماری حیات دفتر معماری حیات دفتر معماری حیات دفتر معماری حیات دفتر معماری حیات دفتر معماری حیات دفتر معماری حیات دفتر معماری حیات دفتر معماری حیات دفتر معماری حیات دفتر معماری حیات دفتر معماری حیات دفتر معماری حیات

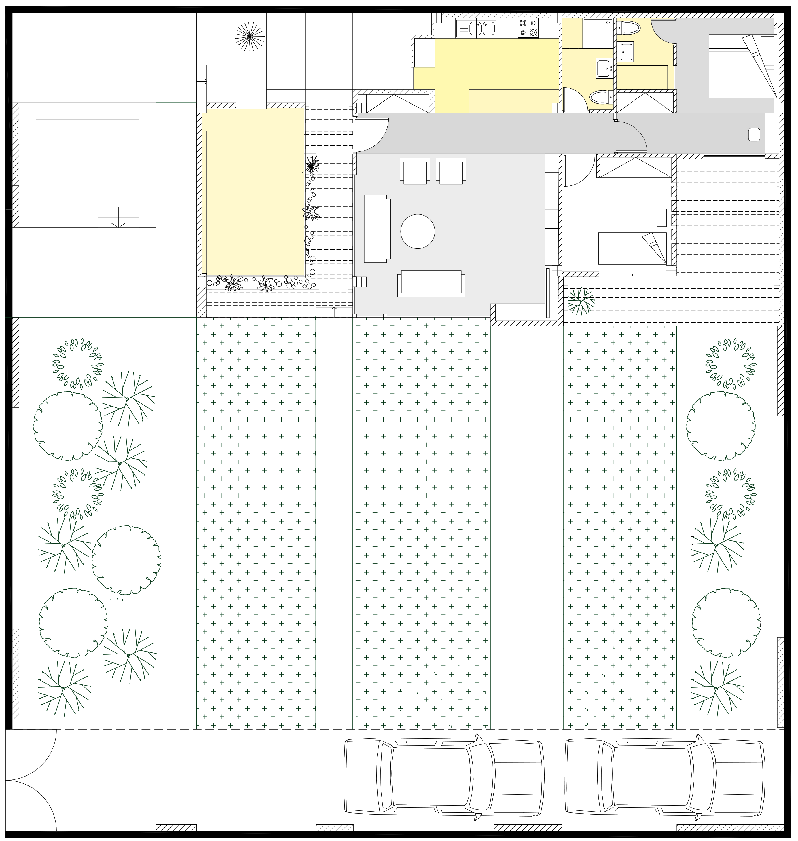
ویلای همسایه


نوع پروژه: ویلایی

این ویلا در همسایه‌گی پروژه قبلی (ویلایی برای چهل سالگی) قرار دارد. بنابراین در طراحی سعی شد زبان طراحی مشترکی مابین این دو پروژه حفظ شود. این ویلا زمینی به مساحت 560 مترمربع و دارای زیربنای 110 متر مربع می‌باشد.

طراحی :آذین پیشوا

اجرا: حامد عمادی

عکس:نگار صدیقی

موقعیت: چم زیار اصفهان